Anschlüsse und Aufbau
Übersicht
Oberseite | Front | Unterseite |
|---|---|---|
![]() | ![]() | ![]() |
LEDs
LED | Bezeichnung | Reaktion |
|---|---|---|
LED 1 | PWR (Power) | Leuchtet: Das Gerät ist betriebsbereit |
LED 2 | PWRlim | Leuchtet: Leistungsbegrenzung über §14a EnWG ist aktiv |
LED 3 | Online | Leuchtet: Das Gerät ist mit der Online-Plattform verbunden |
LED 4 | RS485-1 | Leuchtet bei Datenverkehr auf der Schnittstelle |
LED 5 | RS485-2 | Leuchtet bei Datenverkehr auf der Schnittstelle |
LED 6 | EMS Status | Leuchtet: Es stehen keine Fehler an |
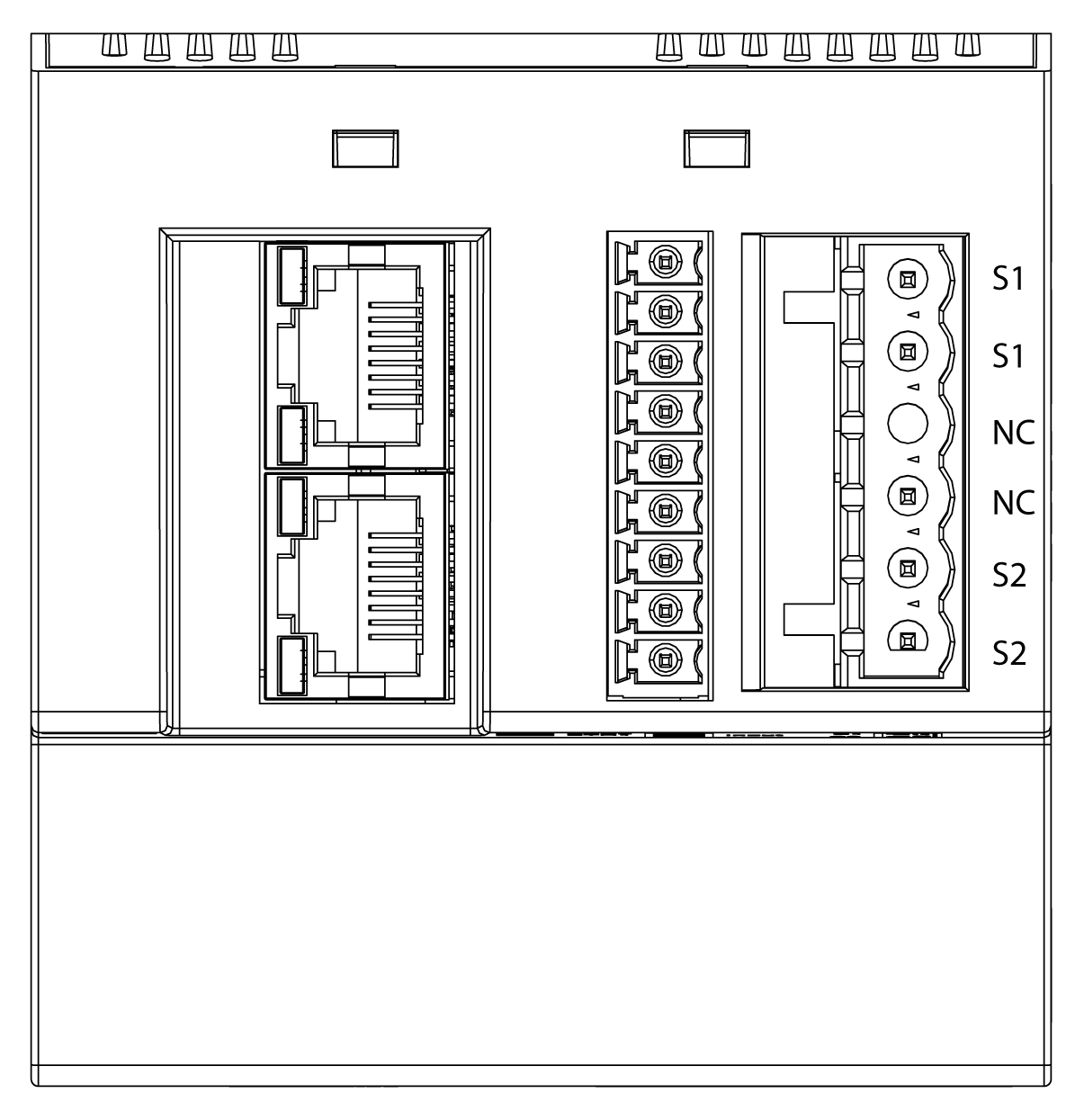
Anschlüsse Oberseite
LABEL | BEZEICHNUNG | BESCHREIBUNG |
|---|---|---|
A | ETH1 | Netzwerk-Schnittstelle 1 (Internet) |
B | ETH2 | Netzwerk-Schnittstelle 2 (AMPERIX-Netzwerk) |
C | Input | Digitale Eingänge (z.B. für §14a Signale) |
D | S1 und S2 | Relais Schließer 1 und 2 |
Anschlussbelegungen
LABEL | BELEGUNG | ||||||||||||||||||
|---|---|---|---|---|---|---|---|---|---|---|---|---|---|---|---|---|---|---|---|
C (Input) ![]() |
![]() | ||||||||||||||||||
D (Relais S1 & S2)![]() |
|
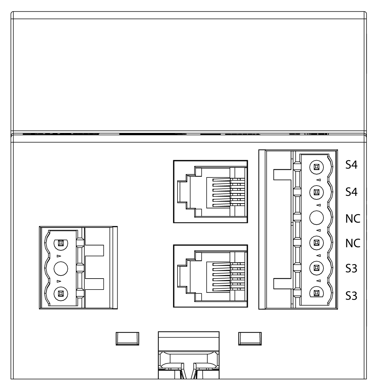
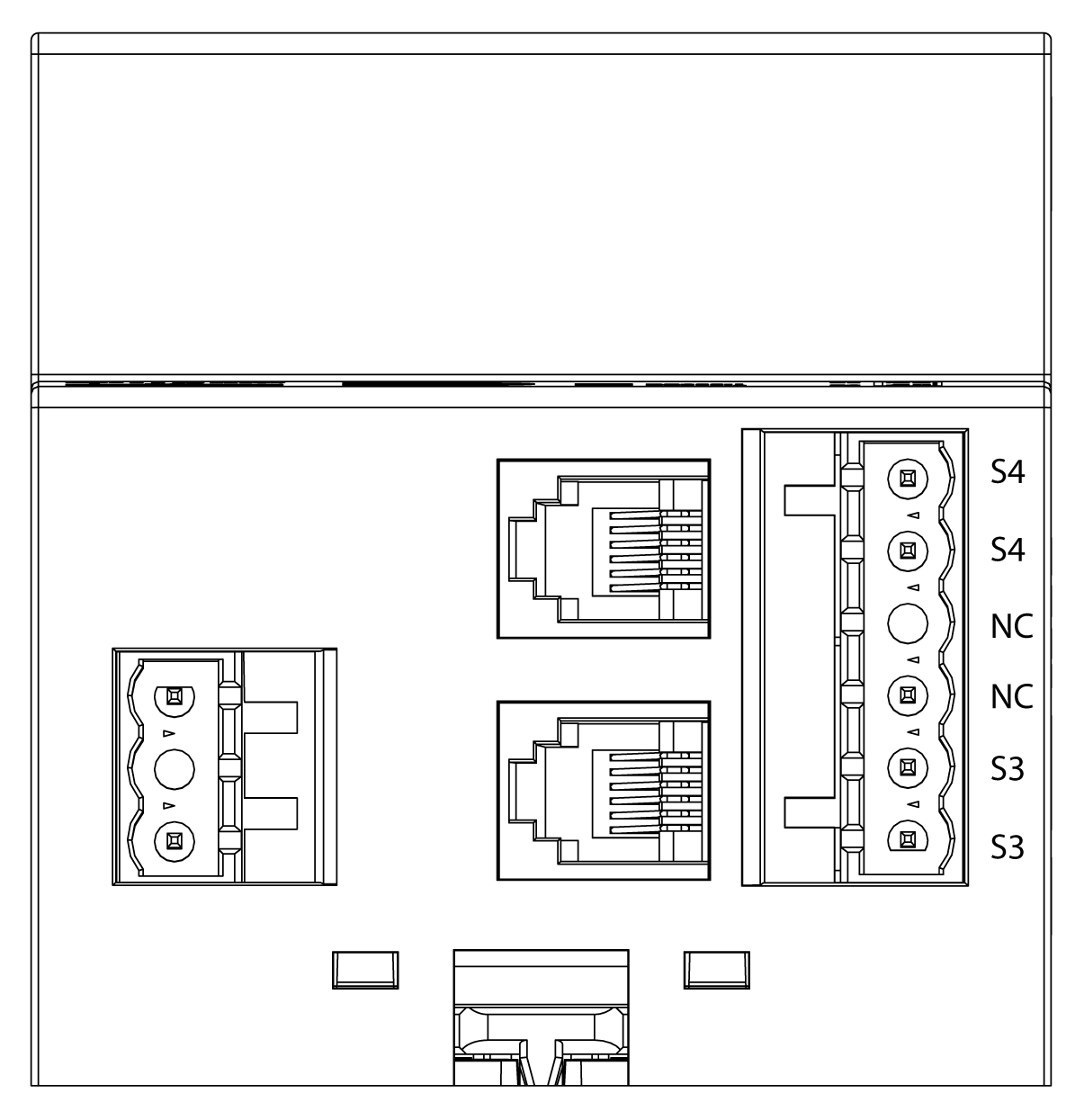
Anschlüsse Unterseite
LABEL | BEZEICHNUNG | BESCHREIBUNG |
|---|---|---|
E | PWR | Stromversorgung (230V/50Hz) |
F | RS485-1 | RS485 Port 1 (Modbus-RTU) |
G | RS485-2 | RS485 Port 2 (Modbus-RTU) |
H | S3 und S4 | Relais Schließer S3 und S4 |
Anschlussbelegungen
LABEL | BELEGUNG | ||||||||||||
|---|---|---|---|---|---|---|---|---|---|---|---|---|---|
E (PWR) ![]() |
| ||||||||||||
F (RS485-1)![]() |
| ||||||||||||
G (RS485-2)![]() |
| ||||||||||||
H (Relais 3 & 4) ![]() |
|
Bitte beachten Sie:
Es sind nur die mitgelieferten Klemmen zulässig.
Die Netzwerkleitungen müssen von spannungsführenden Leitungen und Teilen getrennt verlegt werden!
Den Relaisschaltkreisen muss ein Leitungsschutzschalter Typ B von je 6 A vorgeschaltet
werden.Das Schalten beliebiger Außenleiter ist zulässig.
Das Schalten von Schutzkleinspannung SELV ist nur zulässig, wenn an beiden benachbarten Schaltkontakten S2/S1 bzw. S3/S4 Schutzkleinspannung SELV angeschlossen ist.
Hinweise zu den RS-485-Anschlüssen:
Sie müssen den schwarzen und roten Pin getrennt voneinander isolieren
Die beiliegende RJ12-Leitung dient nur als Adapter. Die Modbus-RTU-Leitung zu den Geräten muss einen Querschnitt von ≥ 0,8 mm² haben!
Widerstand (beigelegt, 120 Ohm mit 0,25 W) nur verwenden, wenn das letzte Modbus RTU Gerät keinen integrierten Abschlusswiderstand bietet. Im HEMS ist bereits ein Abschlusswiderstand enthalten.
Hinweise zu den Eingängen (SELV, 12 V DC):
An die isolierten Eingänge nur SELV/PELV anschließen.
An die nichtisolierten Eingänge nur SELV (12 V VCC aus Gerät) anschließen.











