Anschlüsse und Aufbau
Übersicht
Oberseite | Front | Unterseite |
|---|---|---|
![]() | ![]() | ![]() |
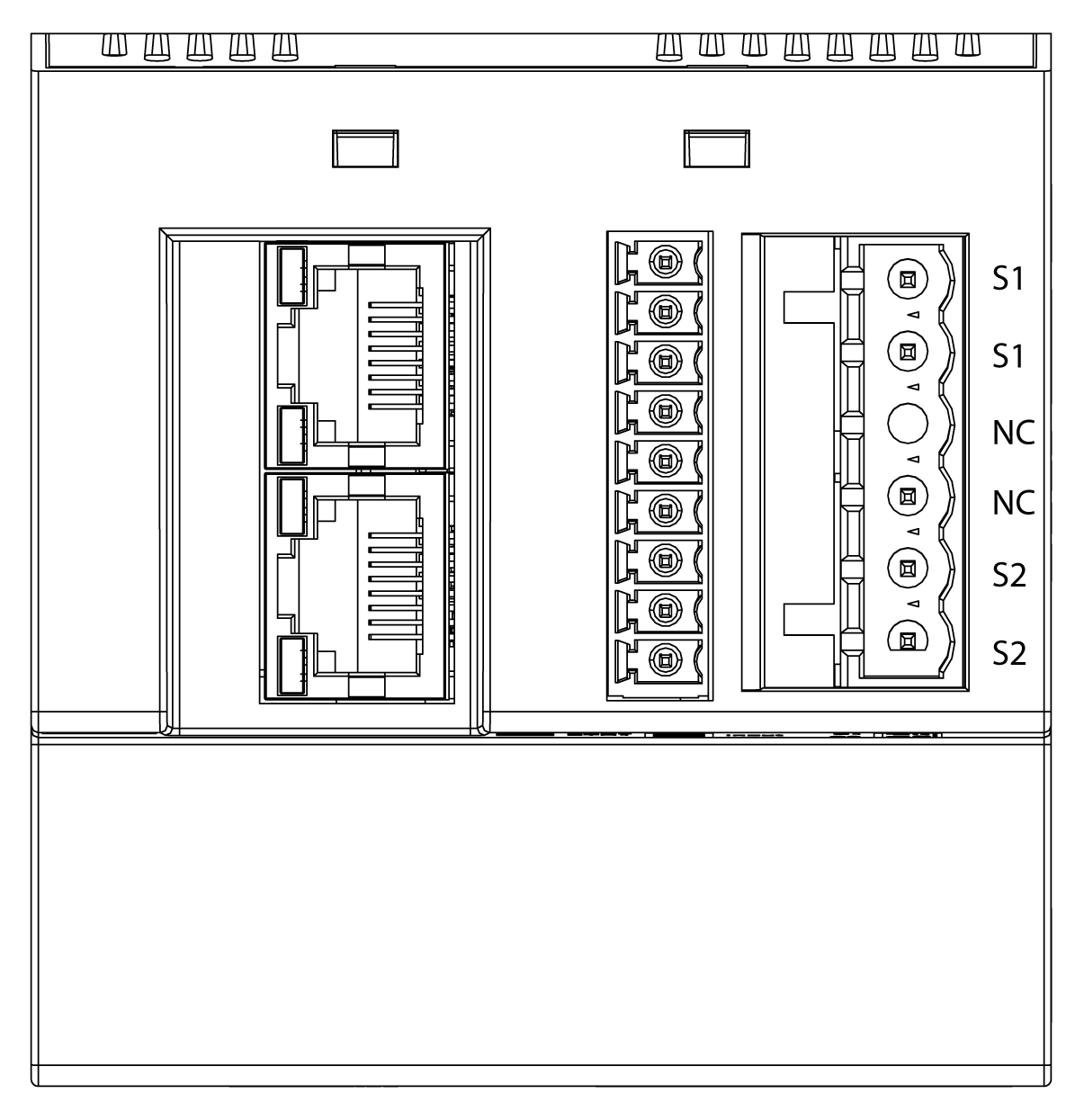
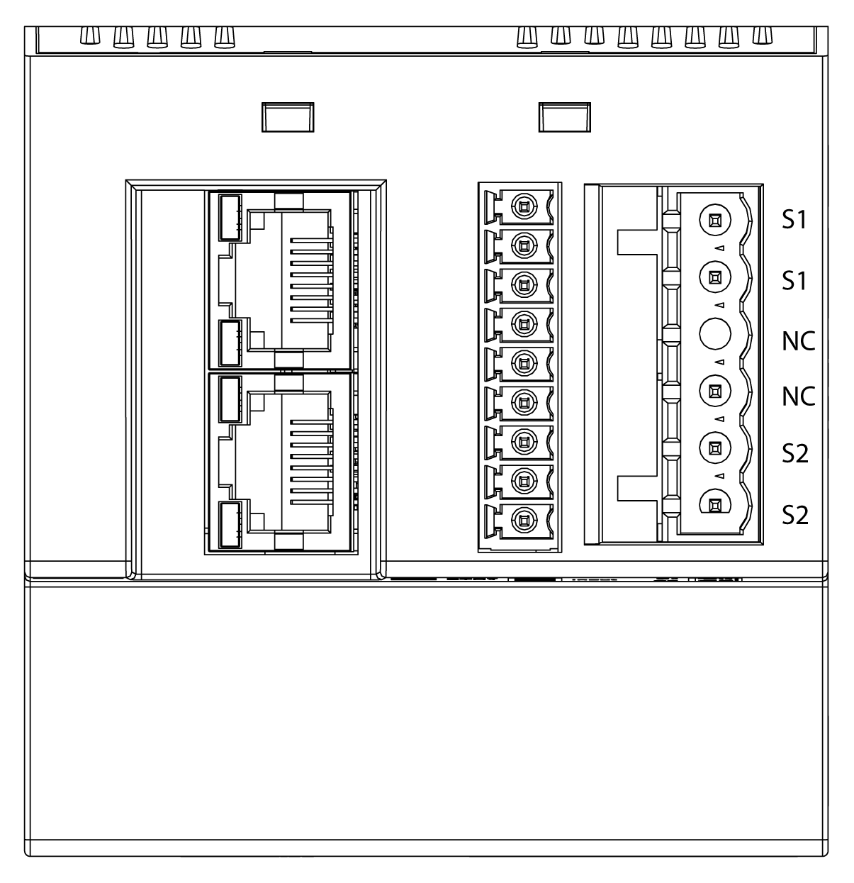
Anschlüsse Oberseite
LABEL | BEZEICHNUNG | BESCHREIBUNG |
|---|---|---|
A | ETH1 | Netzwerk-Schnittstelle 1 (Internet) |
B | ETH2 | Netzwerk-Schnittstelle 2 (AMPERIX-Netzwerk) |
C | Input | Digitale Eingänge (z.B. für §14a Signale) |
D | S1 und S2 | Relais Schließer 1 und 2 |
Anschlussbelegungen
LABEL | BELEGUNG | ||||||||||||||||||
|---|---|---|---|---|---|---|---|---|---|---|---|---|---|---|---|---|---|---|---|
C (Input) ![]() |
![]() | ||||||||||||||||||
D (Relais S1 & S2)![]() |
|
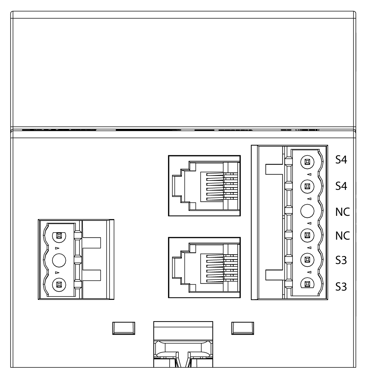
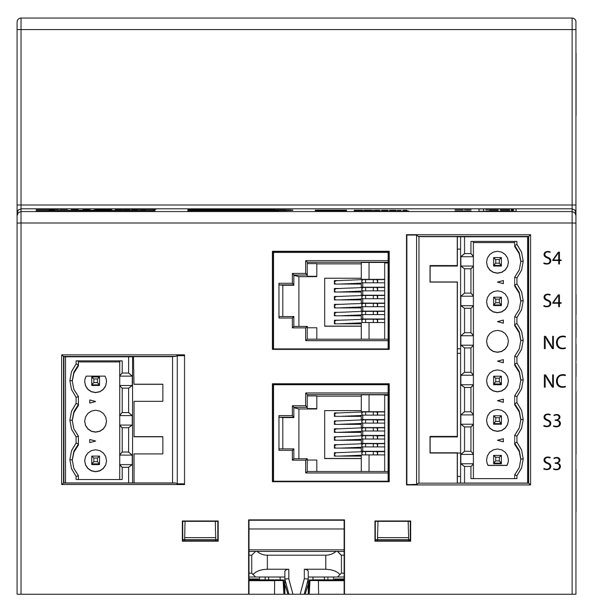
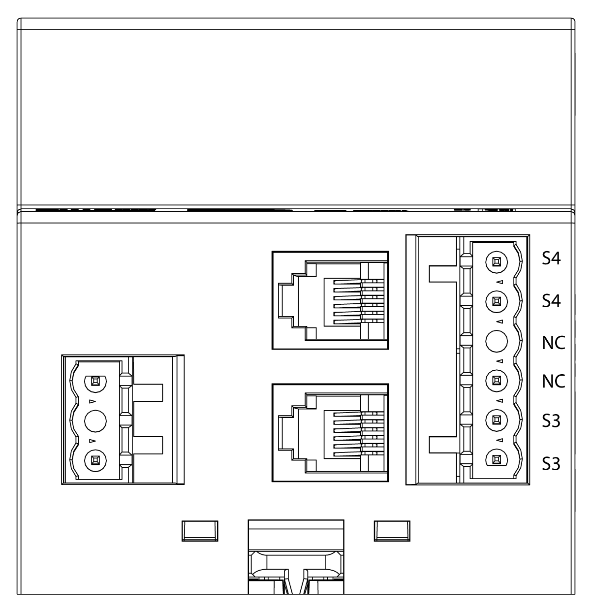
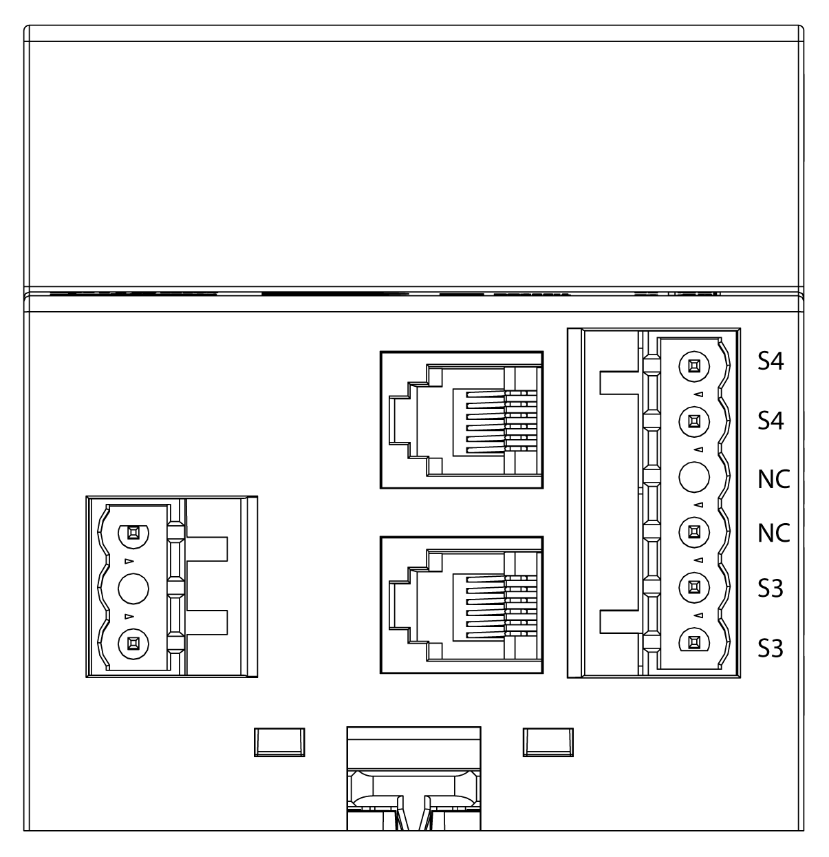
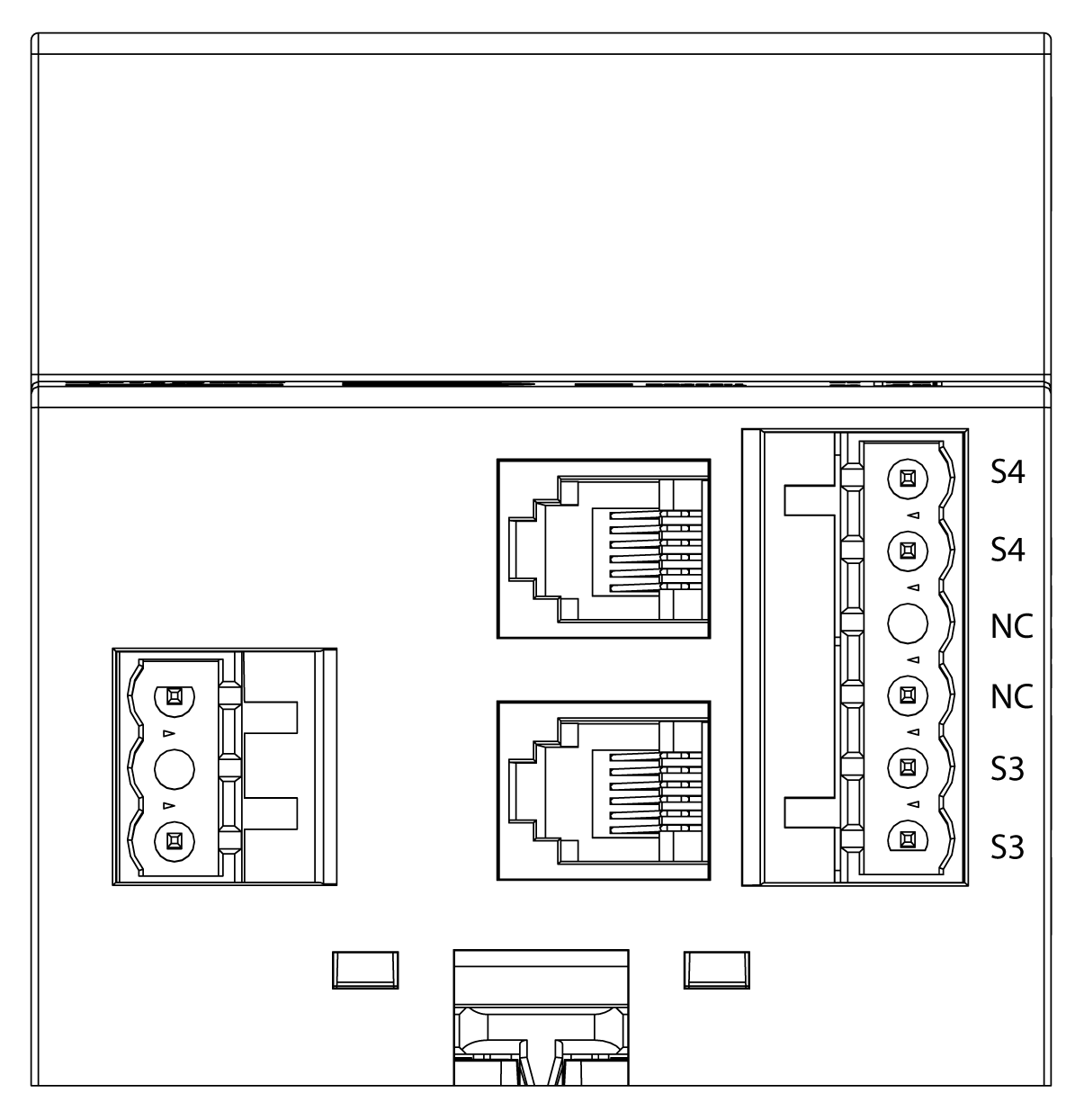
Anschlüsse Unterseite
LABEL | BEZEICHNUNG | BESCHREIBUNG |
|---|---|---|
E | PWR | Stromversorgung (230V/50Hz) |
F | RS485-1 | RS485 Port 1 (Modbus-RTU) |
G | RS485-2 | RS485 Port 2 (Modbus-RTU) |
H | S3 und S4 | Relais Schließer S3 und S4 |
Anschlussbelegungen
LABEL | BELEGUNG | ||||||||||||
|---|---|---|---|---|---|---|---|---|---|---|---|---|---|
E (PWR) ![]() |
| ||||||||||||
F (RS485-1)![]() |
| ||||||||||||
G (RS485-2)![]() |
| ||||||||||||
H (Relais 3 & 4) ![]() |
|











